Orchard Hill: Penthouse & Duplex Layouts by CapitaLand
When you consider the Orchard Hill project by Capitaland in Vietnam, you’re stepping into a domain of contemporary luxury that redefines urban living. The penthouses on the 24th floor, with their impressive ceiling heights and panoramic views, contrast sharply with the spacious duplexes that offer both elegance and practicality. Each unit reflects a commitment to quality and customization, raising the question of how these design elements contribute to the overall lifestyle experience. What other features might enhance this lively community?
Table of Contents
About Orchard Hill
Orchard Hill stands out as a premier residential project designed to enhance your living experience. Nestled in a lively area in the New City of Binh Duong, this development offers a blend of modern design and thoughtful planning, catering to individuals and families seeking comfort and convenience.
You’ll find that the project prioritizes both aesthetics and functionality, ensuring a welcoming atmosphere that truly feels like home.
With a variety of unit types, including penthouses and duplexes, Orchard Hill caters to diverse lifestyles and preferences. The penthouse units promise breathtaking views from the 24th floor, while the duplexes on the 4th and 5th floors provide spacious living options with impressive ceiling heights.
Imagine enjoying your morning coffee while soaking in the stunning scenery.
Moreover, the project emphasizes quality through its construction standards. You can expect a raw handover for penthouses and a basic handover for duplexes, allowing you to customize your space.
As the developer officially opens bookings, you’ll want to act fast to secure your ideal unit and take advantage of early booking incentives.
Orchard Hill isn’t just a place to live; it’s a community designed with your lifestyle in mind.
Orchar Hill Duplex Layout
Uncovering the layout of the Orchard Hill duplex units offers you a glimpse into spacious living designed for comfort. These units, situated on the 4th and 5th floors, provide ample room for family activities and relaxation. With a ceiling height of 6.5 meters, you’ll feel the openness and brightness that truly enhances your living experience.
Here’s a quick overview of the duplex layout:
| Feature | Orchard Hill I | Orchard Hill II |
|---|---|---|
| Number of Units | 6 | 5 |
| Floor Levels | 4th & 5th | 4th & 5th |
| Handover Type | Basic | Basic |
Each duplex features a basic handover, which includes cement walls and electrical sockets. This allows you to customize your space according to your taste. The combination of spaciousness and height in the design creates an inviting atmosphere that you’ll love to come home to. With these layouts, you’re not just buying a unit; you’re investing in a lifestyle that prioritizes comfort and modern living.
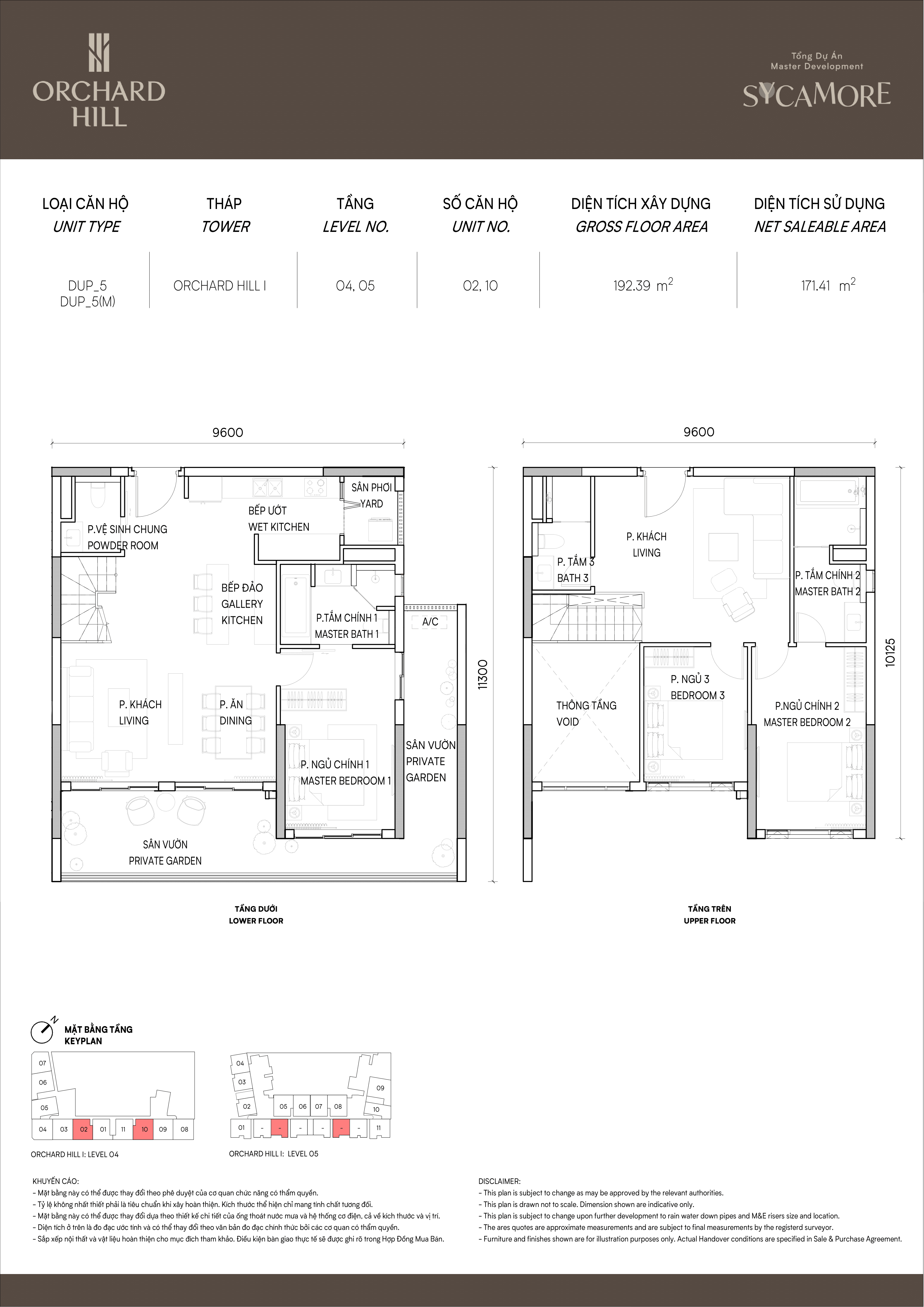
Orchard Hill I Duplex Layout - 03 & 09
Orchard Hill I Duplex Layout - 02 & 10
Orchard Hill I Duplex Layout - 01 & 11
Orchard Hill II Duplex Layout - 02 & 04
Orchar Hill Penthouse Layout
The layout of the Penthouse units at Orchard Hill offers a luxurious living experience that distinguishes itself in the development.
Nestled on the 24th floor of Orchard Hill II, these seven exclusive units bring a blend of elegance and functionality. With a ceiling height of 3.9 meters, you’ll enjoy a spacious and airy atmosphere.
Here’s what you can expect from the Penthouse layout:
- Open Living Space: Expansive areas designed for both relaxation and entertainment.
- Raw Handover: Flexibility to customize your space, with only load-bearing walls included.
- Stunning Views: Floor-to-ceiling windows provide breathtaking panoramic views of the surrounding scenery.
- Design Potential: You can create a unique aesthetic that reflects your personal style.
- Prime Location: Being on the top floor guarantees both privacy and exclusivity.
This Penthouse layout not only emphasizes luxury but also allows you to personalize your home to fit your vision.
If you’re looking for an extraordinary living experience, the Penthouse at Orchard Hill is undoubtedly a fascinating choice.
Don’t miss the chance to secure your booking for these exceptional units!
Orchard II Penthouse Layout - 01
Orchard II Penthouse Layout - 02
Orchard II Penthouse Layout - 03
Orchard II Penthouse Layout - 04
Orchard II Penthouse Layout - 05
Orchard II Penthouse Layout - 06
Orchard II Penthouse Layout - 07
To summarize, the Orchard Hill project by Capitaland offers an exceptional living experience with its luxurious penthouses and spacious duplexes. You’ll enjoy stunning views, high ceilings, and the flexibility to customize your space. Being part of a lively community adds to the overall lifestyle, making it an ideal choice for modern living in Vietnam. If you’re seeking a blend of elegance and comfort, Orchard Hill is definitely worth considering for your next home.



