Orchard Collection Floor Plans 2026: 2BR, 3BR & 4BR Layouts Reviewed
Quick Navigation
The Orchard Collection by CapitaLand Development offers 4 distinct towers across 6 unique blocks — Atelier (A), Bespoke (B), Clio (C1/C2/C3) and Define (D) — with a total of 1,025 apartments across 2BR, 3BR, 3BR Limited Edition and 4BR configurations. This guide presents every unit type and floor plan as published in the official CapitaLand brochure, so you can find the exact layout that matches your lifestyle and budget.
Use the Quick Navigation above to jump to your unit type, or scroll through for a complete tower-by-tower and room-by-room analysis.
Floor Plans by Tower Block — All Levels
Each tower at Orchard Collection has a distinct block layout determining which unit types sit on which side and at which levels. Understanding the floor plan helps you visualise view orientation, corridor access, and how PES/garden units relate to upper-floor layouts. Below are all official floor plans for each of the 6 blocks.
Atelier Tower A — 4 Blocks (A1, A2, A3, A4)
Atelier Tower A is the most varied block, housing 8 different 2BR sub-types (A, B, C, E-PES, PES1, PES4, PES5) and all 3BR Limited Edition TH-A units with private garage. Block A1–A4 runs in a curved arc orientation giving corner units excellent dual-aspect views. Ground floor (1F) hosts PES and Limited Edition garage units; upper floors (2–10) are pure apartment layouts.
Bespoke Tower B — Blocks B1, B2
Bespoke Tower B is the most concentrated block, with 2BR-D, 2BR-E1, 2BR-PES3, 2BR-PES6, 2BR-PES7 plus 3BR-A1, 3BR-B, 3BR-C, and 3BR Limited TH-B garage units. Its smaller footprint (2 blocks only) means fewer units per floor and potentially wider corridors. B1 and B2 mirror each other, so B1 units face east while B2 units face west.
Clio Tower C — Block C1
Clio Tower C — Block C2
Clio Tower C — Block C3
Clio Tower C is the largest tower with 3 blocks (C1, C2, C3), running in a gentle arc to maximise views. C1 and C3 are end-blocks with more corner units; C2 is the central block. Clio houses 2BR-A, 2BR-C, 2BR-PES1/2/5 and all 3BR-A2, 3BR-C, 3BR-D, 3BR-PES variants. The 4BR-PES units are also exclusively in Clio. Ground floor plan shows the inner-courtyard orientation — units here access the COUTURE podium amenities directly.
Define Tower D — 4 Floor Groups
Define Tower D has a distinct 4-group floor structure: ground floor (1F), floors 2–6, floor 7 (transition), and floors 8–10 (top tier). This tower primarily houses 4BR-A standard units and the 3BR-PES2 garden unit on level 1. The stepped floor structure reflects different unit mixes per level — buyers targeting Define should check which floor group their preferred unit sits in.
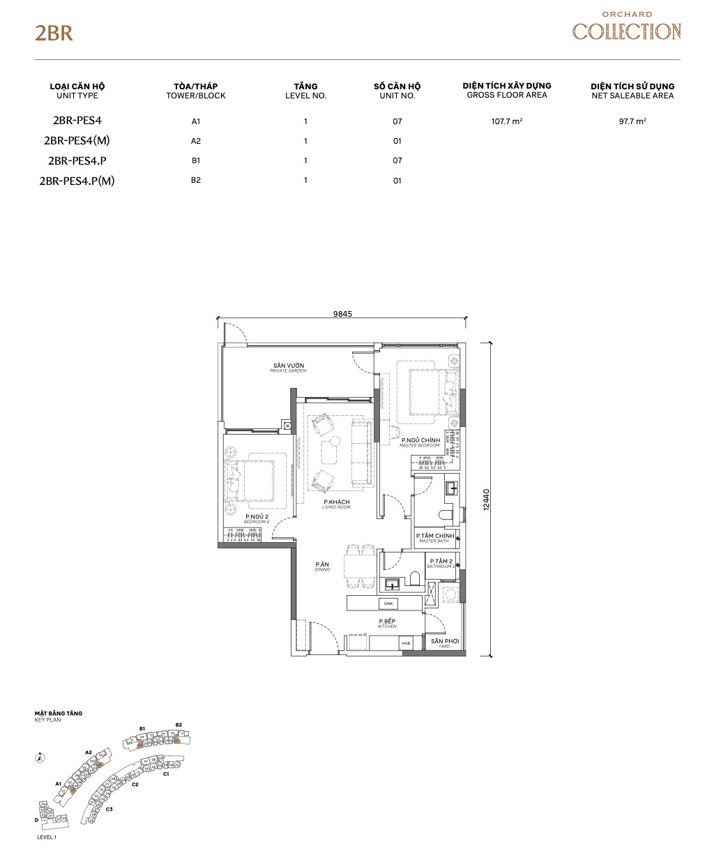
2-Bedroom Units — All Layouts & Configurations
Orchard Collection offers 6 standard 2BR layouts (floors 2–10) plus 8 ground-floor PES variants with private gardens. Standard 2BR units range from 82m² to 110m² GFA; PES units add 20–50m² of exclusive garden space on top. All 2BR units come in both original and mirrored (M) orientations — meaning the same layout can face different directions depending on which block and floor it is in.
Each image below shows all variants within that type: the standard plan, its mirror, and where applicable the PES (upper floor balcony upgrade) versions.
2BR Standard Units — Floors 2 to 10
Types A / B / C are the “full-size” 2BR layouts (~91–110m² GFA) featuring a proper dining area, full-length living room and dual balconies in some variants. Type D is the compact 2BR (~82m² GFA) with a galley kitchen — ideal for couples or investors prioritising yield over space. Types E1 / E2 are mid-size layouts (~88–95m² GFA) with a single large balcony and flexible study/dining zone.
| Type | GFA | NSA (est.) | Highlight | Best For |
|---|---|---|---|---|
| 2BR-A | ~91–110m² | ~75–88m² | Dual balcony, large living room | Couples, small families |
| 2BR-B | ~91–110m² | ~75–88m² | Open-plan kitchen-dining | Lifestyle buyers |
| 2BR-C | ~91–110m² | ~75–88m² | Corner layout, wider views | View-maximisers |
| 2BR-D | ~82m² | ~67m² | Compact, efficient, higher yield | Investors |
| 2BR-E1 | ~88–95m² | ~72–78m² | Study nook, single large balcony | Remote workers |
| 2BR-E2.P | ~88m² | ~72m² | PES upgrade version of E | Buyers wanting extra outdoor space |
2BR Ground Floor PES & Garden Units
PES (Private Enclosed Space) units occupy the ground floor (Level 1) and come with an exclusive landscaped garden ranging from 20m² to 80m² depending on the type. These are the closest thing to a landed home in a high-rise project — you step directly from your living room into your own private outdoor space.
- PES 1–5: Larger gardens (40–80m²), oriented toward the inner COUTURE or MAISON courtyard
- PES 6–7: Smaller, more private gardens (20–35m²), perimeter-facing
- E-PES: E-series layout with PES add-on — good balance of indoor space and garden
Note: PES units are priced at a premium of approximately 15–25% over equivalent upper-floor units. However, they are unique in offering true private outdoor living space and are typically the first to sell out in any CapitaLand launch.
3-Bedroom Units — All Layouts & Configurations
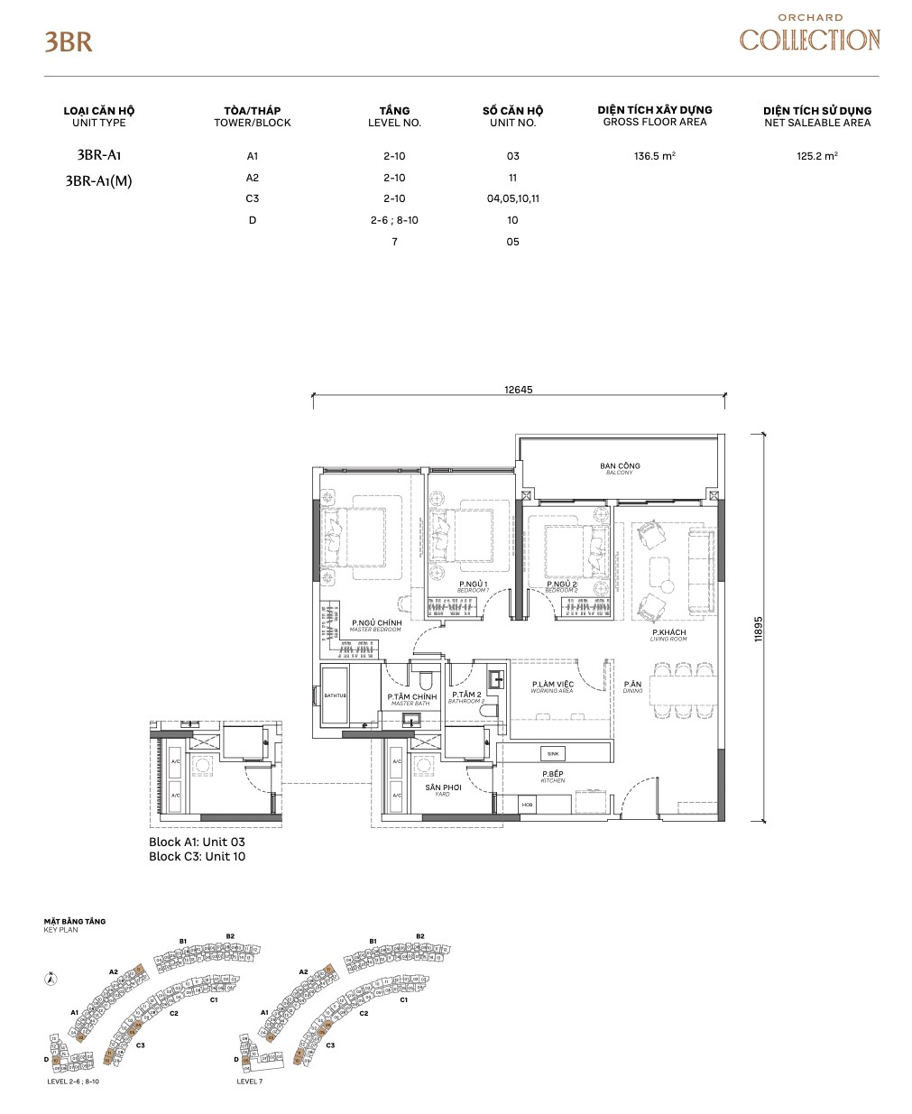
The 3BR range at Orchard Collection is the most diverse — spanning from a 110m² compact 3BR to a 175m² Limited Edition with private garage. There are 8 standard upper-floor layouts, 4 PES ground-floor variants, and the exclusive 3BR Limited Edition series. For families, the 3BR is the most popular choice; for investors, the 3BR-A1 offers the best balance of size and yield.
3BR Standard Units — Floors 2 to 10
Types A1 / A2 are the flagship 3BR layouts — wide frontage, master suite with walk-in wardrobe, and a proper dining area separate from the kitchen. Types B / C have a more linear layout with efficient circulation. Type D is a corner configuration available only in specific blocks with dual-aspect views.
| Type | GFA | NSA (est.) | Tower/Block | Highlight |
|---|---|---|---|---|
| 3BR-A1 | ~125m² | ~100m² | A1, A2, B1, B2 | Flagship — wide frontage, walk-in wardrobe |
| 3BR-A1.P | ~125m² | ~100m² | A1, A2, B1, B2 | A1 with extended balcony (PES upper) |
| 3BR-A2 | ~120m² | ~96m² | C1, C2, C3 | Slightly smaller A-series, Clio tower only |
| 3BR-B | ~115m² | ~92m² | B1, B2 | Linear layout, efficient circulation |
| 3BR-B.P | ~115m² | ~92m² | B1, B2 | B with extended balcony (PES upper) |
| 3BR-C | ~118m² | ~94m² | C1, C2, C3 | Corner variant, dual-aspect in C tower |
| 3BR-C.P | ~118m² | ~94m² | C1, C2, C3 | C with extended PES balcony |
| 3BR-D.P | ~112m² | ~90m² | D | Define tower only, compact 3BR + garden balcony |
3BR Ground Floor PES & Garden Units
The 3BR PES units bring together the space of a 3-bedroom apartment with the outdoor lifestyle of a landed property. The 3BR-PES2 in Define Tower D at 142.2m² GFA / 128.8m² NSA is particularly spacious, with a large landscaped sân vườn (garden terrace) that extends the living room outdoors.
- 3BR-PES2 (Define Tower D): 142.2m² GFA — ground floor, garden view
- 3BR-PES1.P: Upper-floor balcony extended variant of PES series
- 3BR-PES3: Ground floor, inner courtyard orientation
- 3BR-PES3.P: PES3 with extended upper floor balcony
3BR Limited Edition — Private Garage Units (TH Series)
The 3BR Limited Edition (TH series) is the crown jewel of Orchard Collection’s ground-floor offering. At 193m² GFA / 176.1m² NSA, these are the largest and rarest units in the project — only available on Level 1 across all 4 towers. The defining feature: a private enclosed garage (gara xe) for one car, embedded within the unit’s footprint.
| Type | GFA | NSA | Tower/Block | Unit Numbers | Special Feature |
|---|---|---|---|---|---|
| TH-A.P | 193m² | 176.1m² | A1 (Unit 03), A2 (Unit 05), B1 (Unit 03), B2 (Unit 05) | 4 units | Private garage — Type A orientation |
| TH-B.P | 193m² | 176.1m² | Selected A/B blocks | 4 units | Private garage — Type B (mirrored) orientation |
| TH-C.P | 193m² | 176.1m² | A1 (Unit 01), A2 (Unit 07), B1 (Unit 01), B2 (Unit 07) | 4 units | Private garage — Type C orientation |
Why consider the Limited Edition? In Vietnam’s urbanising cities, private garage space within an apartment complex is extraordinarily rare. These units also come with the full 3BR layout plus study/home-office space — making them comparable to a landed townhouse, at apartment pricing. Total inventory: approximately 12 units across the entire project. Once sold, there are no replacements.
Limitation to note: Ground floor location means no high views. However, direct access to the MAISON/COUTURE garden podium more than compensates — you essentially live on the amenity deck level.
4-Bedroom Units — Standard & PES Configurations
4BR Standard — Type A
4BR-A is the largest standard apartment at Orchard Collection, located primarily in Define Tower D. GFA approximately 157m² / NSA approximately 130m². The layout features: a generous master suite with walk-in wardrobe and ensuite, 3 additional bedrooms with shared bathroom, full-size kitchen, and a wraparound balcony. 4BR-A.P is the PES-extended version with a larger balcony.
- Master bedroom: ~18–22m² with walk-in wardrobe
- Kitchen: closed galley-style, separate from dining
- Balcony: full-width, facing main view axis of the tower
- Best for: Large families (3+ children), live-in domestic helper setups
4BR Ground Floor PES Units
4BR-PES1 and 4BR-PES2 bring the 4BR footprint down to ground level with exclusive garden access. These are the most spacious units in the entire project if you include the PES area. Available in Clio Tower C blocks.
| Type | GFA (est.) | PES Garden | Tower | Best For |
|---|---|---|---|---|
| 4BR-PES1 | ~165m² | ~40–60m² | Clio C | Multi-generational families, home-office needs |
| 4BR-PES1.P | ~165m² | Extended balcony | Clio C | Upper-floor 4BR with large balcony |
| 4BR-PES2.P | ~158m² | Extended balcony | Clio C | Compact 4BR with PES upgrade |
View & Orientation Guide — Which Direction Does Your Unit Face?
Orchard Collection’s 4-tower layout is arranged in a curved arc around the central Signature Arrival and MAISON/COUTURE amenity zones. This means inner-facing units (overlooking the podium gardens and pools) and outer-facing units (overlooking Vo Van Kiet Boulevard and the Binh Duong cityscape) have fundamentally different experiences.
| Tower | Block | Inner View | Outer View | Sunrise | Sunset |
|---|---|---|---|---|---|
| Atelier A | A1–A4 | MAISON garden & pool | Binh Duong Boulevard north | A1/A2 blocks | A3/A4 blocks |
| Bespoke B | B1–B2 | Signature Arrival & gate | Western Thuan An cityscape | B1 (east) | B2 (west) |
| Clio C | C1–C3 | COUTURE garden & pool | Southern green belt & canal | C1 (SE) | C3 (SW) |
| Define D | D | Central garden walkway | Eastern Binh Duong view | D east units | D west units |
Practical tip: Vietnam’s climate means west-facing balconies receive intense afternoon sun (2pm–6pm). If you’re heat-sensitive, prioritise east-facing units (morning sun only) or inner-facing units sheltered by the podium canopy. The PES/garden units on Level 1 are naturally cooler — ground-level planting provides significant shade relief.
Master Comparison — All Unit Types at a Glance
| Category | Type | GFA | NSA (est.) | Level | Tower | Standout Feature |
|---|---|---|---|---|---|---|
| 2BR Standard | A / B / C | 91–110m² | 75–88m² | 2–10 | A, B, C | Full-size 2BR, dual balcony options |
| 2BR Standard | D | ~82m² | ~67m² | 2–10 | B | Compact — highest yield |
| 2BR Standard | E1 / E2 | 88–95m² | 72–78m² | 2–10 | B, D | Study nook + large balcony |
| 2BR PES | PES 1–7 + E-PES | 82–110m² | +20–80m² garden | 1 | A, B, C | Private garden — landed feel |
| 3BR Standard | A1 / A1.P | ~125m² | ~100m² | 2–10 | A, B | Flagship layout, walk-in wardrobe |
| 3BR Standard | A2 | ~120m² | ~96m² | 2–10 | C | Clio tower exclusive |
| 3BR Standard | B / B.P | ~115m² | ~92m² | 2–10 | B | Linear layout, efficient |
| 3BR Standard | C / C.P | ~118m² | ~94m² | 2–10 | C | Corner unit, dual aspect |
| 3BR Standard | D.P | ~112m² | ~90m² | 2–10 | D | Define tower compact 3BR |
| 3BR PES | PES1.P / PES3 / PES3.P | 115–120m² | +garden | 1 | A, B, C | Garden + 3BR space |
| 3BR PES | PES2 | 142.2m² | 128.8m² | 1 | D | Largest 3BR PES, Define tower |
| 3BR Limited | TH-A / TH-B / TH-C | 193m² | 176.1m² | 1 | All | Private garage — only ~12 units |
| 4BR Standard | A / A.P | ~157m² | ~130m² | 2–10 | D | Largest non-PES apartment |
| 4BR PES | PES1 / PES1.P / PES2.P | ~158–165m² | +garden | 1 / upper | C | Multi-gen family flagship |
Which Unit Is Right for You? Buyer Profile Guide
🏠 Young Couple / First-Time Buyer
→ 2BR-D (compact, efficient, lower entry price) or 2BR-E1 (home-office friendly). Prioritise floors 5–8 for balanced value vs. views.
👨👩👧 Growing Family (1–2 Kids)
→ 3BR-A1 (Atelier/Bespoke) or 3BR-C (Clio). The A1 offers the most generous master suite and walk-in wardrobe. Budget ~VND 8.5–9.5B for upper floors.
🌿 Garden Lifestyle Seeker
→ 2BR PES 1–5 or 3BR-PES2 (Define tower, the most spacious garden unit). If budget allows: 3BR Limited Edition TH series with garage.
🚗 Car Owner + Premium Lifestyle
→ 3BR Limited Edition (TH-A/B/C) — private garage embedded in the unit. Extremely rare at ~12 total units. Contact Realtique early as these sell first.
👨👩👧👦 Multi-Generational Family
→ 4BR-A (Define tower) for maximum room count, or 4BR-PES1 (Clio tower) for garden access + 4 bedrooms. Budget from USD 466,000.
💼 Investor / Buy-to-Rent
→ 2BR-D (highest yield — lower purchase price, solid rental demand from VSIP workers) or 2BR-A/B (mid-tier yield with good resale appeal to expat tenants).
Important Note — Bank Financing
⚠️ Important Note for Foreign Buyers — Bank Financing Not Available: Under current Vietnamese banking regulations, foreign nationals are not eligible to obtain a bank mortgage to purchase property in Vietnam. The Bank Interest Subsidy Scheme and any payment scenarios involving bank loans described apply to Vietnamese citizens only. Foreign buyers must fund purchases through personal capital using the Standard or Fast Payment Scheme. Contact Realtique for guidance: 0866 810 689
Contact Realtique — Schedule a Floor Plan Consultation
Want to compare specific units side-by-side, or book a visit to the Orchard Collection showroom? Our team has access to the full real-time availability list and can show you exactly which unit numbers are still available for each type.
📞 Hotline: 0866 810 689 (Mon–Sun, 8am–9pm)
📧 Email: [email protected]
🌐 Website: realtique.net
Get the Full Orchard Collection Investment Report
A senior Realtique advisor will send you real unit availability, the best unit pick for your budget, and the foreign buyer process — within 24 hours. No spam, no hard-sell.
Fill in the form below — we reply within 24 hours. Or call +84 866 810 689.










